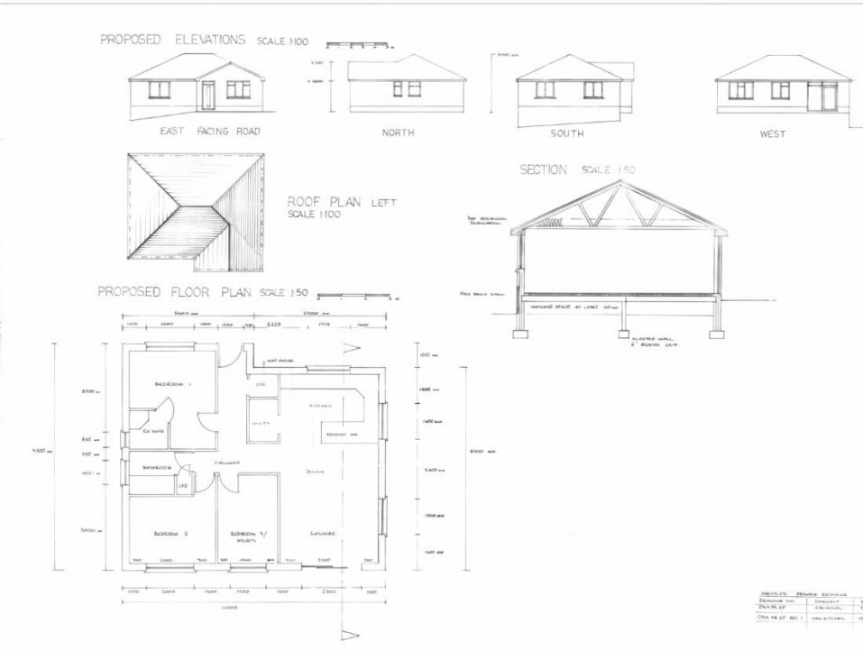
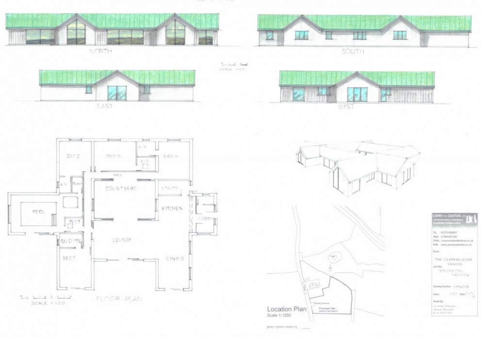
Architectural Designers, North Devon
If you are thinking of building an extension, loft or garage conversion or an entirely new build, contact us first! We at Caves To Castles offer a complete Drawing and Design service:
Concept Designs, Full Measurements, Plans and Working Drawings, Create Artistic Impressions, and act as agents to guide you through Planning Applications and Building Regulations, at the appropriate times.
Whether your project is for a Unique or Modern Design, Traditional, Listed or in a Conservation area, or indeed just a Living Extension to your existing home... we can help all the way.

